土地

泉佐野市南中安松の土地[物件特徴]

  NEW

掲載情報更新日:2026年04月16日 次回更新予定日:2026年04月30日

921.29万円

月々のお支払い例


万円


計算

※ 月々のお支払例は目安の試算となりますので、金融機関や商品によって借入金額の条件は異なります。詳しくは店舗までお問合わせください。

所在地

泉佐野市南中安松

交通

南海電鉄本線『羽倉崎』 徒歩18分 (約1440m)
JR阪和線『長滝』 徒歩22分 (約1760m)

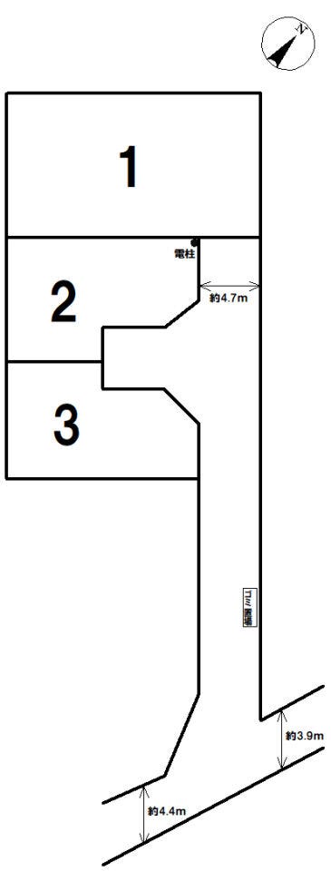
【区画図】

【区画図】

【全体区画図】
1号地

【全体区画図】
1号地

物件の特徴

主な設備

電気

上水道

下水道

都市ガス

主な特徴

建築条件無

物件概要

価格 921.29万円 坪単価 坪19.8万円
物件種別 土地
所在地 大阪府泉佐野市南中安松 1号地
アクセス 南海電鉄本線『羽倉崎』 徒歩18分 (約1440m)
JR阪和線『長滝』 徒歩22分 (約1760m)
土地面積 公153.85㎡(46.53坪) 接道
私道 セットバック
最適用途 住宅用地 造成完了時期
地目 宅地 地勢 平坦
権利 所有権
分譲情報 【販売区画】:3区画
【価格】:753.31万円 ~921.29万円
【最多価格】:700万円 ~800万円(2戸)
【土地面積】:109.24㎡ ~153.85㎡
都市計画 市街化区域
用途地域 準工業
建ぺい/容積率 60% / 200% 土地国土法
許可番号 建築基準法
法令制限 景観法・法22条区域
小学区 長南小学校 徒歩13分 (約1000m) 中学区 長南中学校 徒歩10分 (約800m)
現況 更地 引渡 相談
建築条件 建築条件なし
その他費用
備考 ●建築条件無し ●現況:更地 ●土地面積:約46.53坪
●お好きなハウスメーカー・工務店で建築できます♪
●国道26号線へのアクセス良く車の利用が便利です!
●スーパー・コンビニが近くて生活至便な立地♪
●セブンーイレブン 泉佐野南中安松店まで約600m
●マツゲン 長滝店まで約750m
・司法書士は売主指定です。
・土地取引時に水道加入金、外周、境界ブロック施工費が別途必要となります。
・地盤改良費は買主負担となります。
・分筆前につき、面積及び間口等に変更が生じる場合があります。
・現況有姿でのお引き渡し(現状有姿売買)
物件番号 4679191 取引態様 媒介

電話で問合せ

072-447-6624

定休日:水曜日
営業時間:10:00~19:00

物件番号をお伝えください

物件番号

4679191

【取扱い店舗】ハウスドゥ 泉佐野日根野取扱い店舗情報
ナビ女性画像

【取扱い店舗情報】

ハウスドゥ 泉佐野日根野
取扱会社:株式会社ファイン・サポート
所在地:〒598-0021 大阪府泉佐野市日根野4288-1-103
電話番号:072-447-6624 FAX:072-447-6625
免許番号:大阪府知事(6)第47889号
所属団体:(一社)大阪府宅地建物取引業協会会員
(公社)全国宅地建物取引業保証協会会員
(公社)近畿地区不動産公正取引協議会加盟
定休日:水曜日
営業時間:10:00~19:00

もっとたくさん物件がみたい!という方へ

店頭で

店頭ではHPに掲載できない物件を併せて
394件をご案内できます!

Webで

ご希望にマッチした物件や、新着・値下げ情報を
即日メールにてお届けします!

ページトップ

ページトップ