物件の特徴
主な設備
電気
上水道
下水道
都市ガス
主な特徴
建築条件無
物件概要
| 価格 | 764.71万円 | 坪単価 | 坪22.8万円 |
|---|---|---|---|
| 物件種別 | 土地 | ||
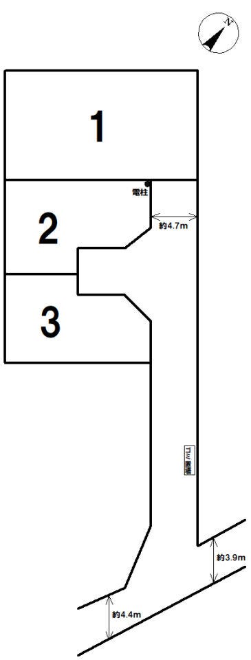
| 所在地 | 大阪府泉佐野市南中安松 2号地 | ||
| アクセス | 南海電鉄本線『羽倉崎』 徒歩18分 (約1440m) JR阪和線『長滝』 徒歩22分 (約1760m) |
||
| 土地面積 | 公110.89㎡(33.54坪) | 接道 | 北東側幅 約4.7m |
| 私道 | セットバック | ||
| 最適用途 | 住宅用地 | 造成完了時期 | |
| 地目 | 宅地 | 地勢 | 平坦 |
| 権利 | 所有権 |
||
| 分譲情報 | 【販売区画】:3区画 【価格】:753.31万円 ~921.29万円 【最多価格】:700万円 ~800万円(2戸) 【土地面積】:109.24㎡ ~153.85㎡ |
||
| 都市計画 | 市街化区域 |
用途地域 | 準工業 |
| 建ぺい/容積率 | 60% / 200% | 土地国土法 | |
| 許可番号 | 建築基準法 | ||
| 法令制限 | 景観法・法22条区域 | ||
| 小学区 | 長南小学校 徒歩13分 (約1000m) | 中学区 | 長南中学校 徒歩10分 (約800m) |
| 現況 | 更地 | 引渡 | 相談 |
| 建築条件 | 建築条件なし | ||
| その他費用 | |||
| 備考 | ●建築条件無し ●現況:更地 ●土地面積:約33.54坪 ●お好きなハウスメーカー・工務店で建築できます♪ ●国道26号線へのアクセス良く車の利用が便利です! ●スーパー・コンビニが近くて生活至便な立地♪ ●セブンーイレブン 泉佐野南中安松店まで約600m ●マツゲン 長滝店まで約750m ・司法書士は売主指定です。 ・土地取引時に水道加入金、外周、境界ブロック施工費が別途必要となります。 ・地盤改良費は買主負担となります。 ・分筆前につき、面積及び間口等に変更が生じる場合があります。 ・現況有姿でのお引き渡し(現状有姿売買) |
||
| 物件番号 | 4679289 | 取引態様 | 媒介 |






























