土地

泉佐野市南中安松の土地[分譲区画]

  NEW

掲載情報更新日:2026年04月16日 次回更新予定日:2026年04月30日

764.71万円

月々のお支払い例


万円


計算

※ 月々のお支払例は目安の試算となりますので、金融機関や商品によって借入金額の条件は異なります。詳しくは店舗までお問合わせください。

所在地

泉佐野市南中安松

交通

南海電鉄本線『羽倉崎』 徒歩18分 (約1440m)
JR阪和線『長滝』 徒歩22分 (約1760m)

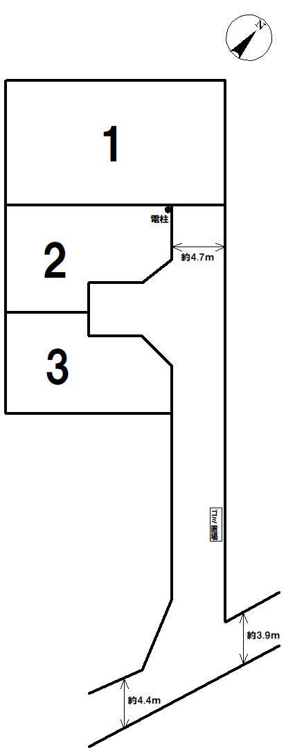
分譲区画マップ

販売状況

1号地売り出し中
2号地売り出し中
3号地売り出し中
区画番号価格(税抜)建物面積敷地面積建ぺい率/容積率詳細
1号地 分譲詳細画像

921.29万円

153.85m2
(46.53坪)
60%/200%

詳細をみる

2号地 分譲詳細画像

764.71万円

110.89m2
(33.54坪)
60%/200%

詳細をみる

3号地 分譲詳細画像

753.31万円

109.24m2
(33.04坪)
60%/200%

詳細をみる

分譲区画の詳細はこちら

物件の設備

都市ガス

下水道

上水道

電気

分譲地情報

分譲地名 泉佐野市南中安松 全3区画 土地分譲
販売区画数 3戸 総区画数
価格 753.31万円~921.29万円
最多価格帯 700.00万円 ~800.00万円(2戸)
交通 南海電鉄本線 羽倉崎 徒歩18分 ~ 18分 (約1440m ~ 1440m)
JR阪和線 長滝 徒歩22分 ~ 22分 (約1760m ~ 1760m)
土地面積 109.24㎡ ~153.85㎡
建物面積
都市計画 市街化区域 用途地域 準工業
建ぺい率 60% 容積率 200%
地目 地勢 平坦
許可番号 土地国士法
法令制限
小学校区 長南小学校 徒歩13分 ~13分 (約1000m ~1000m)
中学校区 長南中学校 徒歩10分 ~10分 (約800m ~800m)
周辺環境情報
備考 ●建築条件無し ●現況:更地 ●お好きなハウスメーカー・工務店で建築できます♪ ●国道26号線へのアクセス良く車の利用が便利です! ●スーパー・コンビニが近くて生活至便な立地♪ ●セブンーイレブン 泉佐野南中安松店まで約600m ●マツゲン 長滝店まで約750m ・司法書士は売主指定です。 ・土地取引時に水道加入金、外周、境界ブロック施工費が別途必要となります。 ・地盤改良費は買主負担となります。 ・分筆前につき、面積及び間口等に変更が生じる場合があります。 ・現況有姿でのお引き渡し(現状有姿売買)
分譲地番号 259081

電話で問合せ

072-447-6624

定休日:水曜日
営業時間:10:00~19:00

物件番号をお伝えください

物件番号

4679289

【取扱い店舗】ハウスドゥ 泉佐野日根野取扱い店舗情報
ナビ女性画像

【取扱い店舗情報】

ハウスドゥ 泉佐野日根野
取扱会社:株式会社ファイン・サポート
所在地:〒598-0021 大阪府泉佐野市日根野4288-1-103
電話番号:072-447-6624 FAX:072-447-6625
免許番号:大阪府知事(6)第47889号
所属団体:(一社)大阪府宅地建物取引業協会会員
(公社)全国宅地建物取引業保証協会会員
(公社)近畿地区不動産公正取引協議会加盟
定休日:水曜日
営業時間:10:00~19:00

もっとたくさん物件がみたい!という方へ

店頭で

店頭ではHPに掲載できない物件を併せて
394件をご案内できます!

Webで

ご希望にマッチした物件や、新着・値下げ情報を
即日メールにてお届けします!

ページトップ

ページトップ